Today was supposed to be closing day for the Fletcher Broome house but we couldn’t get all the parties to agree on the final terms. Hopefully, it will happen next week. We are both a bit disappointed but trying to take the long view. It’s not easy. Lynn doing a great job of keeping us both sane.
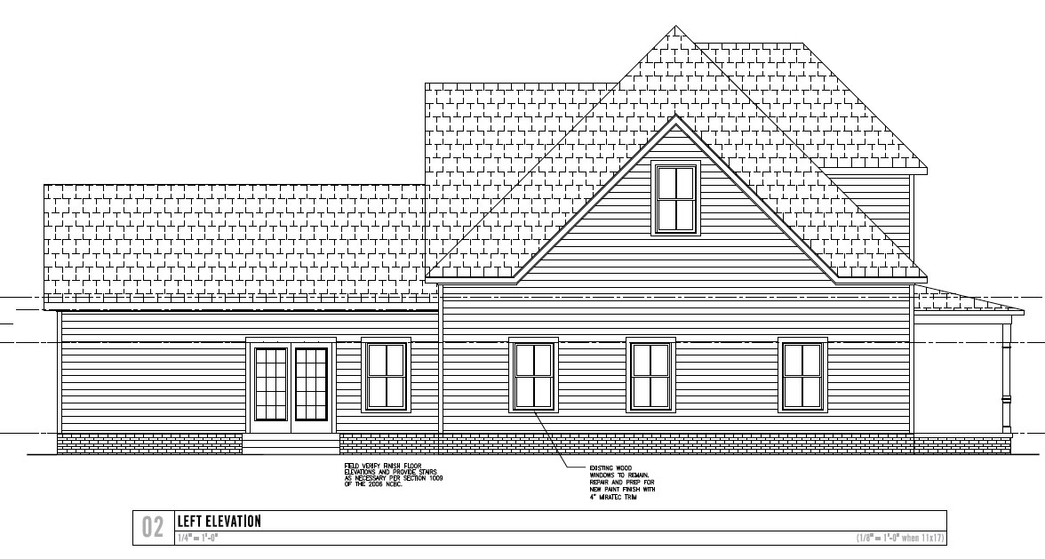
We did get some good news,the architect delivered a few CAD drawings for the outside elevations. Take a look.
Front Elevation

We hope to add a wrap around porch.
Left Elevation

Existing space but we'll add some doors and windows
We’ve added some French doors to this side. We’ll also build a stone patio out here. It should be beautiful since it is full of 150 year old Oak trees.
Right Elevation

We have added some additional space on this side of the house.